Materiality will define the construction of this project. Although it has been considered throughout the design from precedents, we need to evaluate where and how it will be used.

The lower level has been predetermined by its function. It will be concrete. This has advantages as we can determine the mix. Specifically it will incorporate a titanium dioxide mix that absorbs carbon dioxide and turns it to a harmless salt. This salt can then be easily washed away by the environment due to the climate of our site. Concrete also allows for sea life growth as discussed before. As the sea levels rise, the large surface areas promote growth in the natural form. The skin that envelops the building will also be concrete for this reason. It's design means it has a vast surface area which will greatly help sea life growth.

For the construction of the skin, the MUCEM Museum will be the main precedents. It uses filigreed concrete to create a rigid and light skin. It uses a high-performance concrete called Ductal. This is reinforced by organic or metallic fibres and is unique for its elimination of the inherent weaknesses associated concrete as a material used in construction. For example, the improved micro-structural properties of Ductal’s mineral matrix mean it is able to support flexural and tensile loads – even after cracking. It allows concrete to be far more ductile and resistant to corrosion, abrasion and impact. It is able to achieve lighter and larger dimensions of concrete than ever before. 

Ductal is a ultra-high-performance fibre-reinforced concrete (UHPFRC). Because of its density, UHPFRC is impermeable, unlike classic concrete, and can be made using either metal or plastic fibres, meaning that it suffers from none of the corrosion problems to which steel or classic concrete are subject in marine environments − ideal for this waterfront site exposed to the full fury of the Mediterranean.

In the below detail we can see how the skin is attached in panels, 324 of them. My building is far smaller so will need far less panels, at an estimate around 130. UHPFRC cannot be poured in situ but must be precast in moulds, leading to the design of an elegantly slender, tree-like set of columns for the J4 that branch out in Ns and Ys to form an exoskeleton that ensures wind bracing as well as bearing floor load. These columns are made of the same concrete. ​​​​​​​
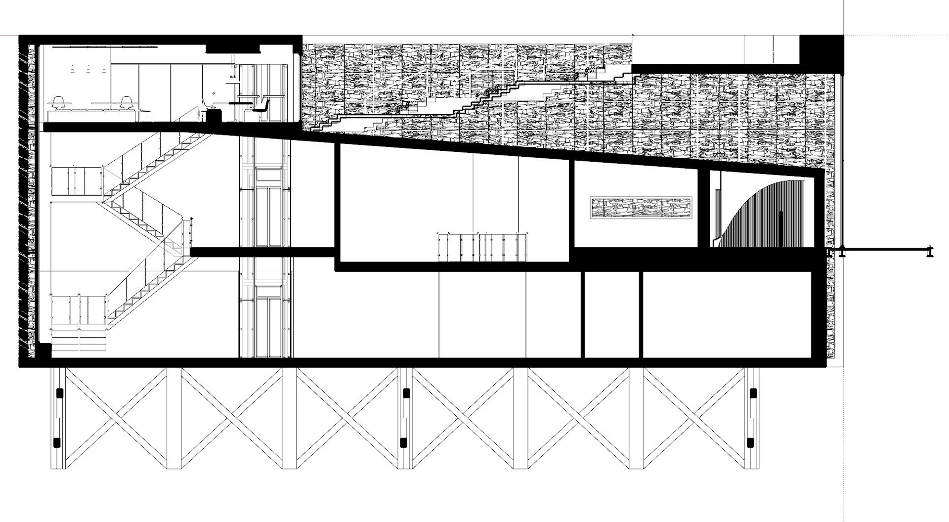
However, I do not like the free flowing edges of the MUCEM museum's skin corners. I wanted to design something more rigid in its cube like form to respond to the square tower next to the site. Therefore, my panels are contained within an 11 sided perimeter box of sorts. This framework adds rigidity and squares off the pattern.

Due to the vast scale difference between my building and the MUCEM museum ( a factor or over 2.5x) , I shall be using smaller columns than the already thin ones on the MUCEM which hide against the existing mullions of my building. They are tied into the inner volume itself. The space between my skin and building is also far smaller than the MUCEM so these columns themselves will attach directly to the skin.

My panels opt to be thicker to allow for maximum light control through the cut of the pattern at an angle but due to the weight are able to be supported by this method.
The series of columns that surround the three sides where the skin exist. These tie into the top roof and bottom floor of the building.

Thicker ones then also tie into the columns that make up the "framework" of the skin.