[ PROJECTS ]
[ WHO? ]
[ CONTACT ]
[ BLOG ]
[ PROJECTS ]
[ WHO? ]
[ CONTACT ]
[ BLOG ]
25.03.2022
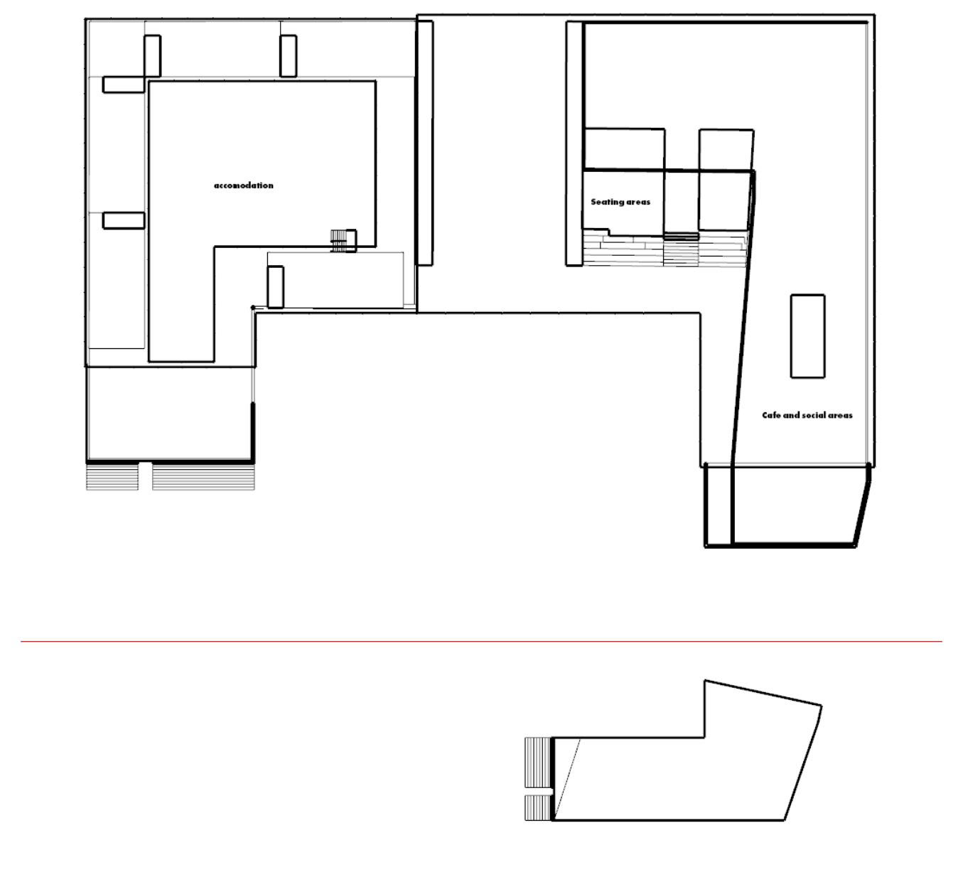
Ground Floor
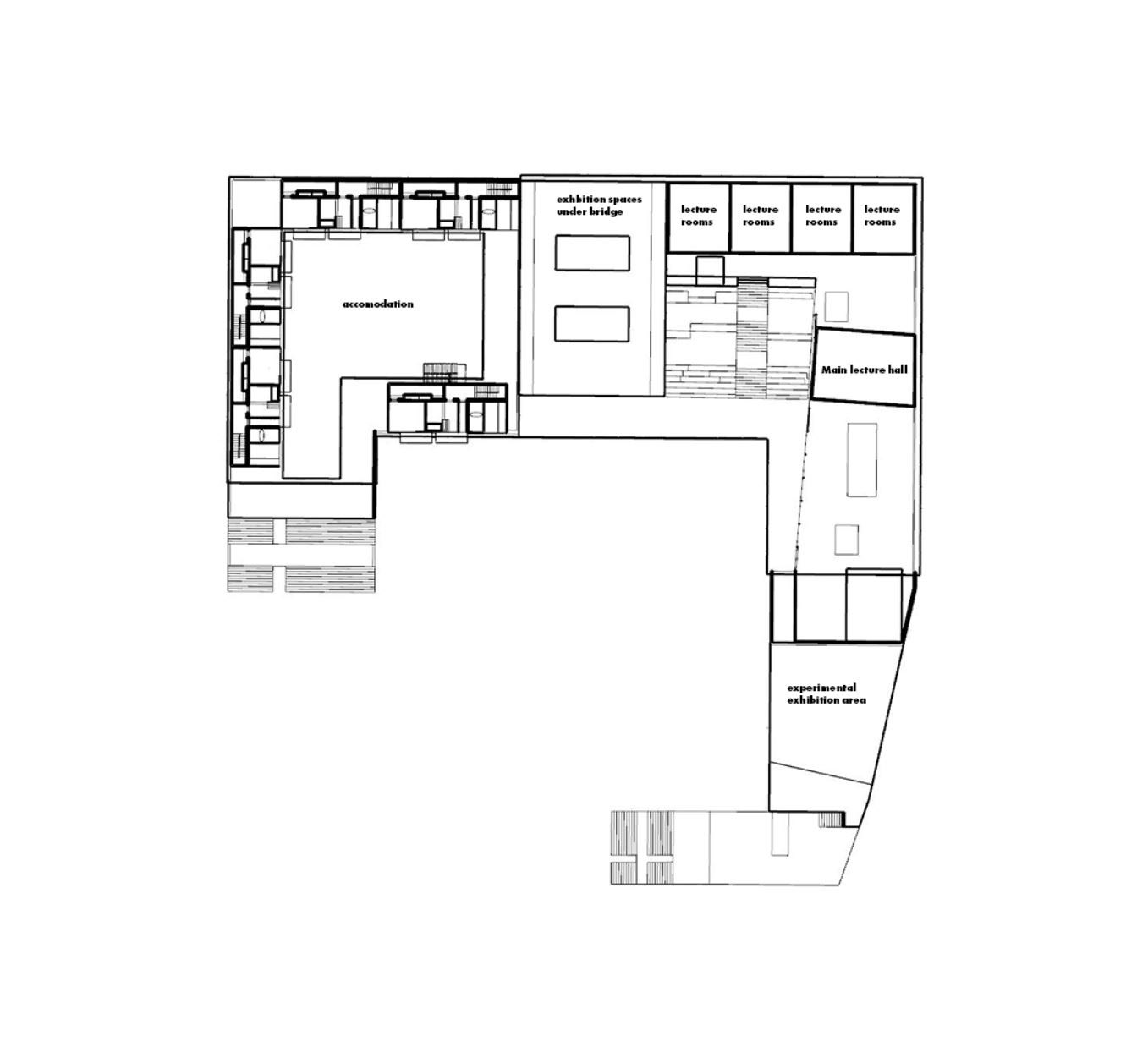
First Floor
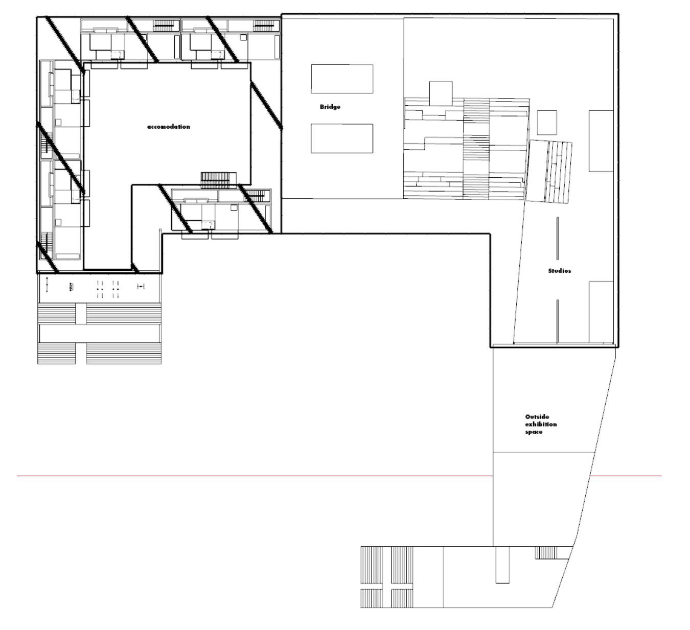
Second Floor